/*2024年11月追加*/ /*2024年11月追加*/ 鈴田モデルハウス | 大村の新築、住宅のことなら 信頼と実績多数【高瀬建設】

施工事例
イベント
電話

お問い合わせ/カタログ請求

OBSERVE

鈴田モデルハウス

8967
8958
8960
8962
8964
8963
9012
9013
9014
9015
9016
8967
8958
8960
8962
8964
8963
9012
9013
9014
9015
9016

鈴田モデルハウス
それは、住まいという名の美術品。

大村市大里町に『災害に強く、家計にやさしい。100 年生き続ける家』をコンセプトに設計したモデルハウスがグランドオープン。
色褪せにくく、通常の外壁に比べ 2 倍の耐久性を持つ金属サイディング外壁。
軽量な素材であるため、地震の際も建物への負担を軽減できます。
災害などへの強さだけではなく、
最もコストがかかる外壁メンテナンスを最小限に抑えることができるのも大きなメリット。
構造、コスト面だけではなく、意匠性にもこだわりました。
開放感、素材の重厚感、そして空気感までもが計算された空間美。
シンプル=快適が両立した家。
真に豊かな暮らしを、ジャストサイズな心地よさを
ぜひその目でご体感ください。

  • 開催時間

    9/13(土)グランドオープン! 10:00~17:00

  • 住所

    〒856-0845
    長崎県大村市大里町4-17
    Google MAP

HOUSEMAP

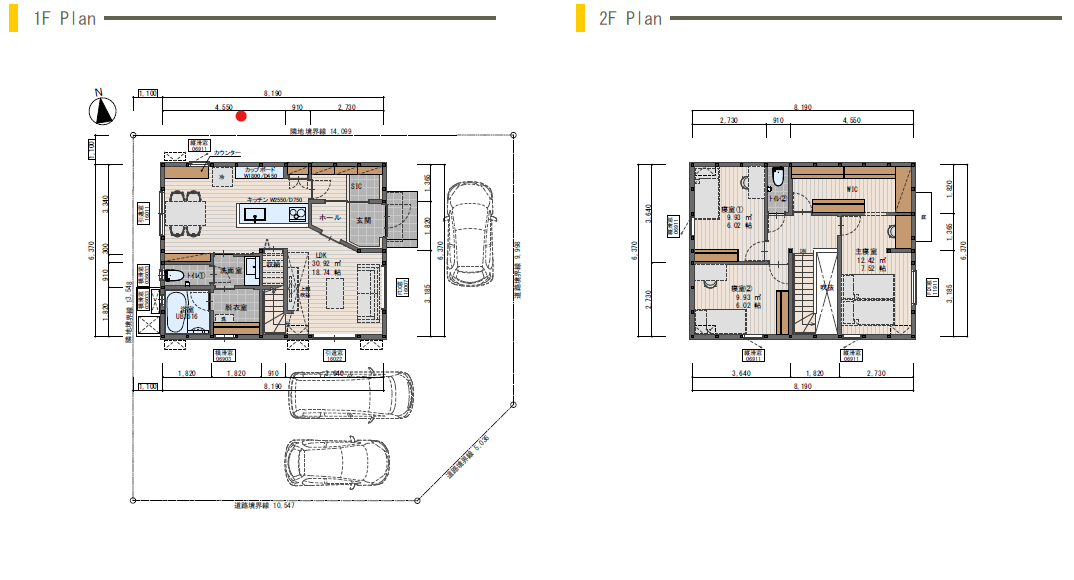
間取り

8974
  • 敷地面積

    184.86㎡(55.92坪)

  • 1F床面積

    52.17㎡(15.78坪)

  • 2F床面積

    49.27㎡(14.90坪)

  • 合計

    101.44㎡(30.68坪)

CALENDAR

鈴田モデルハウス見学予約

の箇所は予約をお受けすることができません

アカウント登録
ログアウト
プロフィールを編集
予約履歴
Subscribed items
登録
close
プロフィール
close
予約履歴
close
ID 予約日時 カレンダー 状態
予約の詳細
close
予約の詳細
サービスを選んでください
サービスの詳細
下記のアドレスに認証コードを送信しました。 認証コードを入力してください。

■個人情報利用目的

・お客様のご要望に合わせたサービスを提供させていただくための各種ご連絡。
・お問い合わせいただいたご質問への回答のご連絡。
尚、お客様から収集する個人情報は弊社の定めるプライバシーポリシーに則って厳重に管理いたします。

■プライバシーポリシー

弊社では、利用者のみなさんの個人情報がきちんと守られることを、何よりも大切にしています。また、利用者ご本人への事前の許可なしに第三者に個人情報を配送作業以外に開示することは絶対にいたしません。
どんな些細な事でも結構です。
ご相談、お見積りなど、お気軽にご連絡ください。
上記メールフォームからご連絡頂くか、電話にてご連絡下さい。
必須マークがついている項目は必ずご記載ください。(株)、(有)や丸囲み数字等の機種依存文字は、文字化けの原因となりますので、使用しないようお願いいたします。