/*2024年11月追加*/
/*2024年11月追加*/
間取り研究所 | 大村の新築、住宅のことなら 信頼と実績多数【高瀬建設】
ホーム
ご予約
モデルハウス
イベント
家を見る
住宅シリーズ
建築事例集
オーナーズボイス
間取り研究所
土地情報
スタッフブログ
補助金
補助金について
ZEHについて
BELSについて
スタッフ紹介
メニュー
閉じる
ホーム
ご予約
モデルハウス
イベント
家をみる
住宅シリーズ
建築事例集
オーナーズボイス
間取り研究所
土地情報
スタッフブログ
補助金
補助金について
ZEHについて
BELSについて
スタッフ紹介
お問い合わせ/カタログ請求
会社概要
土地情報はこちら
プライバシーポリシー
施工事例
イベント
電話
お問い合わせ/カタログ請求
LAYOUTlist
間取り研究所
2026.04.15
No30 32.86坪 2階建て
2026.02.05
No29 33.36坪 2階建て
2026.01.29
No28 20.32坪 2階建て
2025.10.30
No27 33.36坪 2階建て
2025.10.10
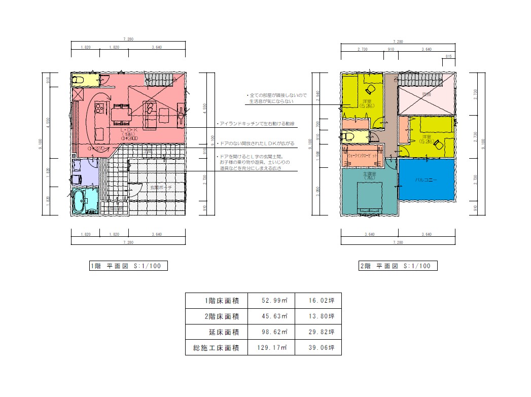
No26 39.06坪 2階建て
2025.10.07
No25 29.60坪 2階建て
2025.10.01
No24 28.85坪 2階建て
2025.08.13
No23 28.85坪 2階建て
1
2
…
4
>>