LAYOUT
間取り研究所
2025.10.10
No26 39.06坪 2階建て
※クリック(タップ)すると拡大できます
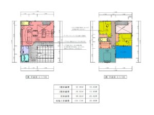
【39.06坪 2階建て (1階:52.99㎡ 2階:45.63㎡)】
・ドアを開けるとL字の玄関土間。
お子様の乗り物や遊具、土いじりの道具などを
充分にしまえる広さ
・ドアのない開放されたLDKが広がる
・アイランドキッチンで左右動ける動線
・すべての部屋が隣接しないので、生活音が
気にならない
/*2024年11月追加*/ /*2024年11月追加*/
2025.10.10
No26 39.06坪 2階建て
※クリック(タップ)すると拡大できます
【39.06坪 2階建て (1階:52.99㎡ 2階:45.63㎡)】
・ドアを開けるとL字の玄関土間。
お子様の乗り物や遊具、土いじりの道具などを
充分にしまえる広さ
・ドアのない開放されたLDKが広がる
・アイランドキッチンで左右動ける動線
・すべての部屋が隣接しないので、生活音が
気にならない